Home
Startseite
Über uns
Kontakt-Verkauf
Referenzen
Objekt
Wohnungen
GreenparStuhrseck-Häuser
BauModell
Impressum
Stuhr-Moordeich Stadt Villa 5-Wohnungen
Stuhr Moordeich-3 Zimmer Wohnungen Erd Luft Wärmepumpe-Fußbodenheizung Neueste Heiztechnik GEG 2023 und Photovoltaik
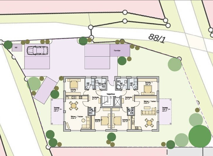
GRUNDRISSE WOHNUNGEN 3 Zimmer
ERDGESCHOSS 94,55qm Pro Wohnung
1.Obergeschoss 82,59qm Pro Wohnung
Penthaus 110qm
Copyright - 2011